3693 Plan - Brick and Stone Elevation
3693 Plan - Farmhouse Elevation
3693 Plan - Transitional Elevation
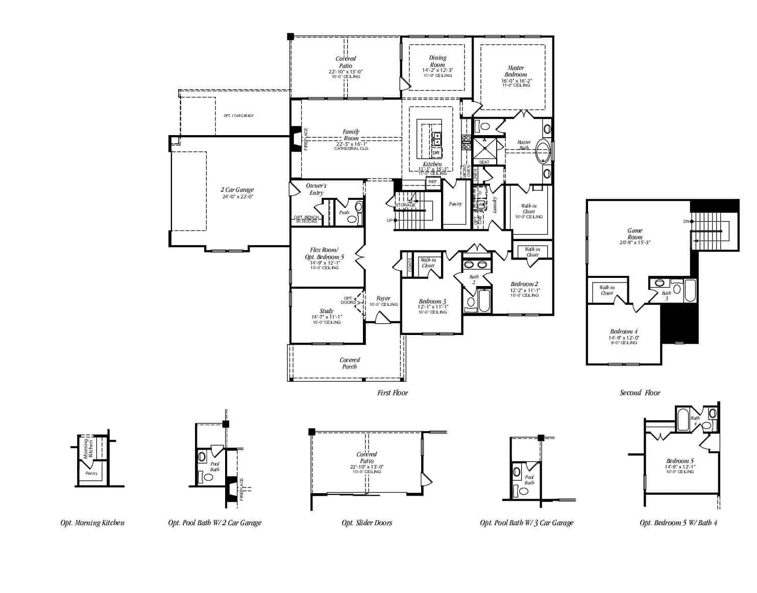
3693 Plan
From $654,990
3693
4
3/1
2