3385 Plan - Hill Country
3385 Plan - Farmhouse
3385 Plan - Transitional Elevation
3385 Plan - Traditional Brick and Stone
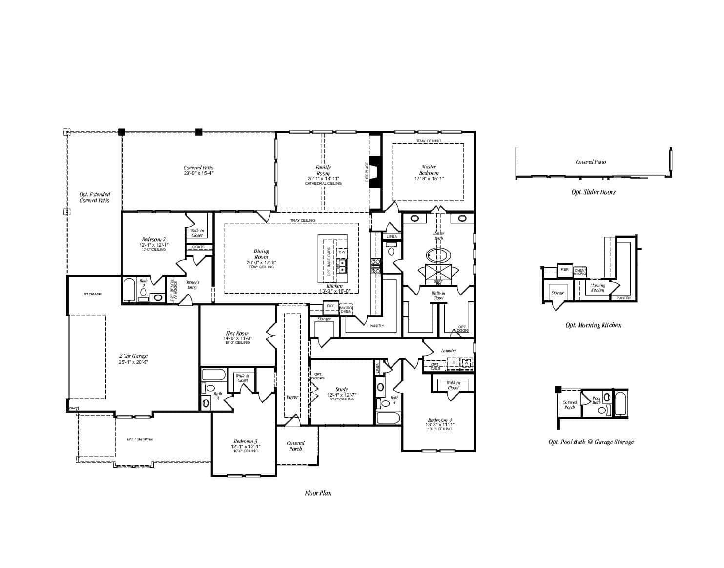
3385 Plan
From $637,990
3385
4
4.5
1
2