3015 Plan - Transitional Elevation
3015 Plan - Farmhouse Elevation
3015 Plan - Traditional Brick and Stone
3015 Plan Transitional
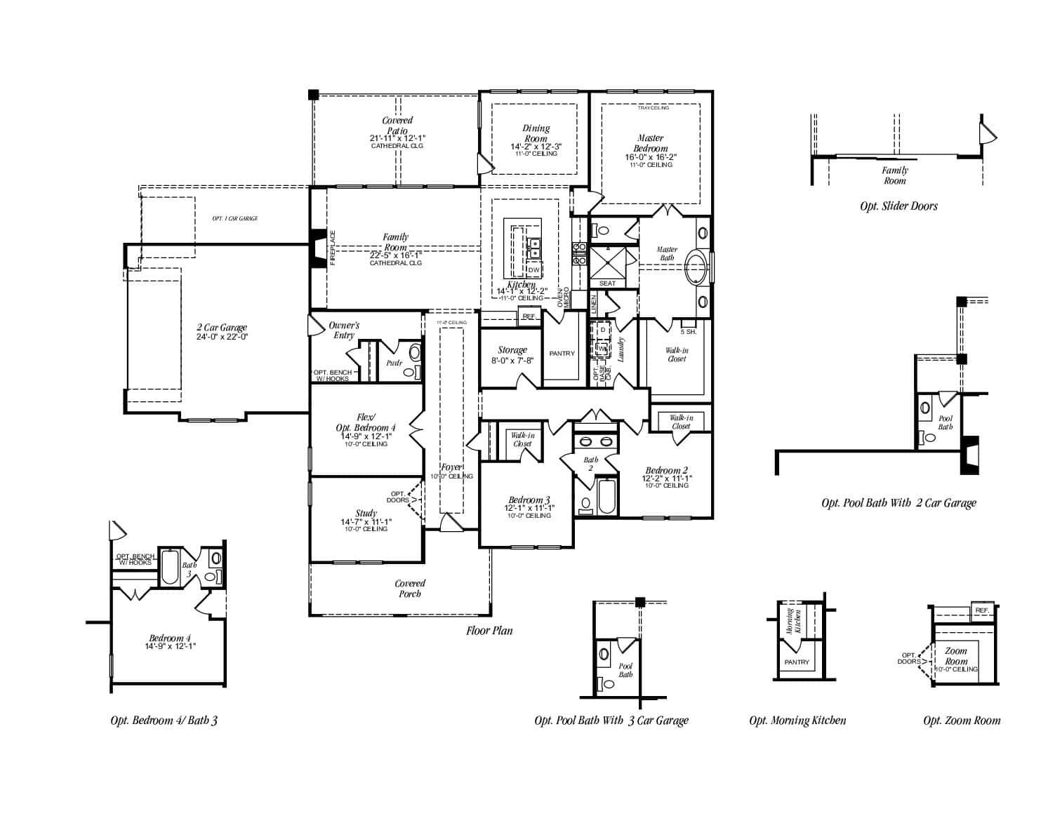
3015 Plan
From $586,990
3015
3
2/1
1
2