2775 Plan - Brick and Stone Elevation
2775 Plan - Farmhouse Elevation
2775 Plan - Transitional Elevation
2775 Farmhouse
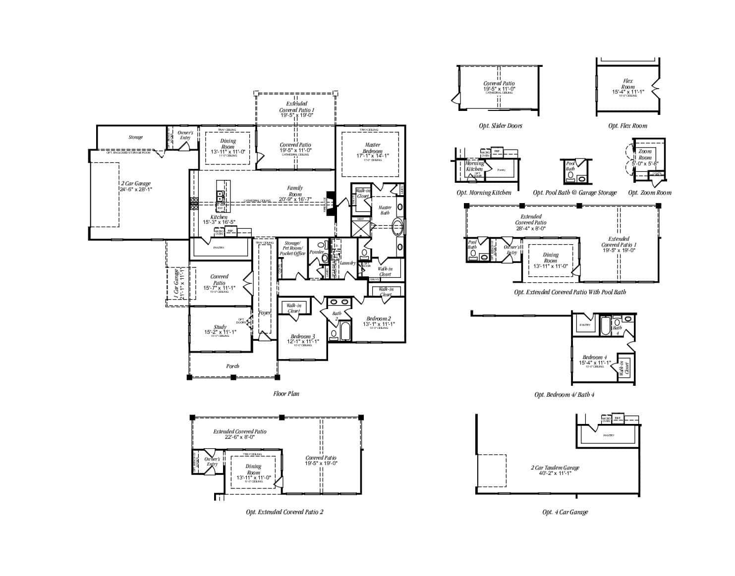
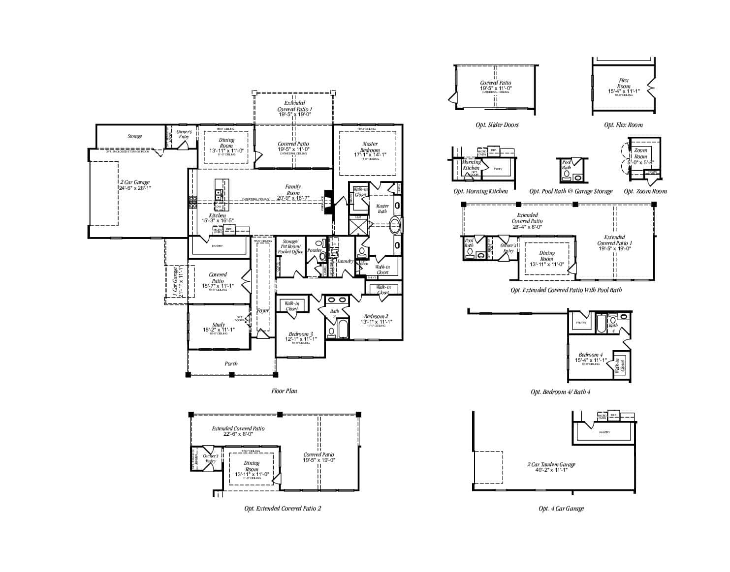
2775 Plan
From $558,500
2775
3
2/1
1
2